전기상담실
안내 (Q&A게시판 안내사항)
우리연합회 업무와 관련하여 궁금하신 사항을 질문하시면 신속하고 성실하게 답변해 드리도록 하겠습니다.
답변내용은 참조용으로 한정 사용되며, 법적인 근거자료로 활용될 수 없습니다.
특정현장의 설계방법, 설계내용의 가부 판정 또는 시공방법 등에 대한 내용은 상담이 불가합니다.
공학적 계산이 필요한 부분 또는 전공교재 등의 대한 내용 문의는 상담이 불가합니다.
질문하시기전에 자주 묻는 Q&A(FAQ) 또는 통합검색(SEARCH) 기능을 통해 검색해 보시면 보다 신속하게 궁금하신 내용에 대한 답변을 얻으실 수 있습니다.
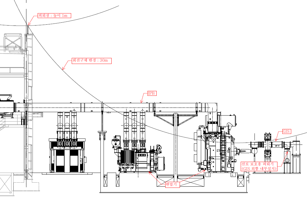
[7335] 변압기 및 IPB 피뢰 설비 적용 관련
수고가 많으십니다.
그림과 같이 구성된 설비에서
변압기와 IPB의 외함에 대한 낙뢰 보호를 위하여 별도의 피뢰설비(피뢰침)이 필요한 것인지
에 대하여 문의를 드립니다.
현재 조건은 다음과 같습니다.
1) 좌측 건물 옥상의 피뢰침 외에 변압기 지역에 별도의 피뢰침 없습니다.
(회전구체 보호 범위를 벗어남)
2) 변압기, IPB 모두 외함 접지는 반영이 되어 있는 상태입니다.
3) GIS 내부에 선로 보호를 위한 피뢰기가 있습니다.

답변글
1. 귀하의 대한전기협회 홈페이지 방문을 환영하오며, 귀하께서는 귀하 현장설비의 낙뢰 보호를 위한 피뢰설비(피뢰침)가 필요한 것인지에 대하여 문의하였으나, 우리 협회는 전기사업법 제67조에서 정한 「전기설비기술기준」의 자문을 해드리고 있으며, 현장 설비의 컨설팅 업무를 수행하지 않으므로 피뢰 전문가와 협의하심이 타당할 것으로 사료됩니다.
2. 다만, 「전기설비기술기준의 판단기준」은 피뢰설비의 시설기준을 다루고 있지 않으나 「한국전기설비규정」(KEC) 151.1은 ‘전기・전자설비 중 낙뢰로부터 보호가 필요한 설비’에는 피뢰시스템을 구성하여야 한다고 명시하는 바, KS C IEC 62305-2(피뢰시스템-리스크 관리)에 따라 피뢰시스템의 필요성 여부를 검토하시기 바라며, 피뢰시스템의 시설이 필요하다고 판단될 경우에는 KEC 151.3에 따라 등급 선정후 KEC 152에 의한 외부 피뢰시스템을 시설하시기 바랍니다. 끝.
※ KS 국가표준 통합정보시스템 ☞ https://www.e-ks.kr/