본문 바로가기

전기상담실

전기상담실

질문과 답변

안내 (Q&A게시판 안내사항)

우리협회 업무와 관련하여 궁금하신 사항을 질문하시면 신속하고 성실하게 답변해 드리도록 하겠습니다.

답변내용은 참조용으로 한정 사용되며, 법적인 근거자료로 활용될 수 없습니다.

특정현장의 설계방법, 설계내용의 가부 판정 또는 시공방법 등에 대한 내용은 상담이 불가합니다.

공학적 계산이 필요한 부분 또는 전공교재 등의 대한 내용 문의는 상담이 불가합니다.

질문하시기전에 자주 묻는 Q&A(FAQ) 또는 통합검색(SEARCH) 기능을 통해 검색해 보시면 보다 신속하게 궁금하신 내용에 대한 답변을 얻으실 수 있습니다.

삭제하시겠습니까? 로그인이 필요합니다. 댓글 내용을 남겨주세요. 최대 글자수를 초과하였습니다. 복사가 완료되었습니다. 권한이 없습니다.

[3658] 서지보호기 설치에 관한 문의

    • g○○
    • 2018.10.25 09:12
    • 14924

    안녕하세요

    서지보호기 설치 및 운용에 관한 질의를 첨부로 의뢰합니다.

    수고하십시요 

    답변글

    • 전기상담실

    1. 귀하의 대한전기협회 방문을 환영합니다.

     

    2. 귀하께서는 “외부분리기”에 대한 기능, 산업표준 등 세부적인 내용을 제시하지는 않았으나 질의하신 “외부분리기”가 KS C IEC 60364-5-53에서 정의하는 SPD 보호장치로 간주하고 아래와 같이 답변드립니다.

     

    ○ 문의 1
     SPD 보호장치는 SPD 고장시 보호대상 설비에서 SPD를 분리할 목적으로 시설되는 것으로서 경제성 판단은 간접접촉보호(감전보호), 설비보호 효과와 시설비용 등을 고려하여 분석되어야함을 알려드리며, 전문가와 상담하여 분석하시기 바랍니다.

     

    ○ 문의 2
     SPD와 SPD 보호장치를 직렬로 시설하는 경우는 보호대상 설비에 대한 전원의 연속성을 우선 목적으로 함을 알려드리며, KS C IEC 60364-5-53 및 IEC 60364-5-53에 제시되어 있는 전원의 연속성 또는 보호의 연속성에 대한 우선순위별 설계방법을 참고하시기 바랍니다.

     

    ○ 문의 3
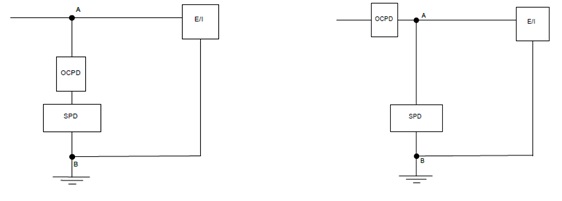
     귀하께서 제시하신 결선에서 분전함 MCCB에 대한 SPD 보호장치 간주 여부는 과전류 보호를 위한 MCCB의 정격전류과 SPD 제조사에서 권장하는 SPD 보호장치 정격전류 및 SPD 연결 도체의 길이에 따라 결정됨을 알려드리며, KS C IEC 60364-5-53 및 IEC 60364-5-53을 참고하시어 판단하시기 바랍니다.


     ※ 아래의 그림 1과 같이 SPD 보호장치를 시설할 경우, SPD 고장 시 전원의 연속성이 제공되지 않을 수 있다. 그럼에도 불구하고, 설비 내에서의 유효 전압 보호 수준은 최소로 유지된다. 하지만, 상위 과전류 보호장치의 정격이 SPD 제조사가 권장하는 최대 과전류 보호보다 높을 때에는 아래의 그림 2에 따른 보호가 적용되어야 한다. 또한 A접촉지점부터 B접촉지점까지(SPD assembly)의 연결 도체의 전체 길이는 0.5m를 넘지 않아야 한다.

     

                    <그림 1>                                                         <그림 2>


    3. 이외에도 SPD 보호에 대한 내용은 내선규정 5220-2 또는 KS C IEC 61643-12(저전압 서지보호장치 제12부: 저전압 배전계통에 접속한 서지보호장치), KECG 9102-2015(저압 전기설비의 SPD 설치에 관한 기술지침-대한전기협회) 등도 참고하시기 바랍니다. 끝.
    ​